Villa a schiera in vendita

San Gillio, Via vittorio alfieri
€ 345.000
Prezzo aggiornato
6 locali 6 locali
183 Mq 183 Mq
2 bagni 2 bagni

Villa a schiera in vendita

San Gillio, Via vittorio alfieri

Descrizione annuncio

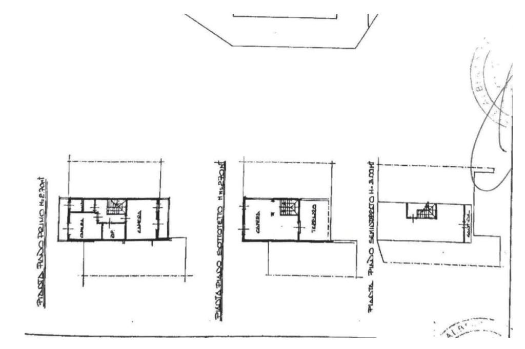
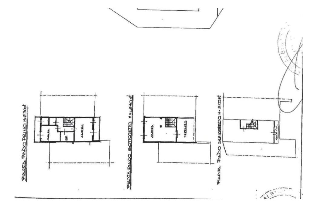
La villetta è posizionata in un piccolo contesto di sole 8 abitazioni. Costruita a fine anni '80 e rivista internamente nel 2019, sarà oggetto di rifacimento della facciata condominiale già approvata. Dal vialetto comune di accede alle singole abitazioni. Ogni villetta ha il proprio cancelletto che delimita la proprietà e dal quale si può accedere al giardino antistante l'abitazione. La porta blindata conduce al salotto con camino a legna funzionante e alla cucina abitabile. Sul retro è presente un secondo giardino, ideale da utilizzare con parenti ed amici nelle calde giornate estive, dotato di una zona piastrellata ed un angolo barbecue. Completa il piano terra un bagno con doccia. La scala interna in marmo che collega tutti i piani conduce alla zona notte composta da due camere da letto, di cui una con cabina armadio; e lo studio. Il bagno al piano è dotato di doccia. La mansarda abitabile con terrazzo completano la soluzione. Il piano seminterrato è composto da una tavernetta, un box auto con portone automatizzato e la zona lavanderia. Caratterizza la soluzione le basse spese condominiali ed il riscaldamento autonomo.

Mostra tutto

Nelle vicinanze

Trasporto pubblico Trasporto pubblico
Trasporto pubblico
490 m
Oropa Capolinea
Oropa Capolinea
2,9 Km
Ricariche auto elettriche Ricariche auto elettriche
Givoletto Via Torino | EnelX
1,9 Km
Scuole Scuole
Scuole
470 m
Scuola Primaria "Gianni Rodari"
480 m
Farmacia Farmacia
Farmacia
400 m
Negozi Negozi
Negozi
2,9 Km
Bar Bar
La Fattoria del Gelato
2,3 Km
Bar
2,9 Km
Ristoranti Ristoranti
Ristoranti
2,3 Km
L'oca ceca
2,7 Km
Mostra tutto

Caratteristiche

Rif.:
61182287
Piano:
1 di 3 (Piano su più livelli)
Box:
1
Balconi:
2
Terrazzi:
1
Camere da letto:
3
Mostra tutto
Prezzo Prezzo
€ 345.000
Rata mutuo Rata mutuo
€ 1.611 / mese
Spese annue Spese annue
€ 600
Proponi il tuo prezzoProponi il tuo prezzo

Classe Energetica

E
E
E
E
E
E
E
E
E
EP globale non rinnovabile:
133.65 kW h/m² anno
EP globale rinnovabile:
63.40 kW h/m² anno
EP invernale del fabbricato:
EP estiva del fabbricato:
Anno di costruzione:
1987
Riscaldamento:
Autonomo
Tipo impianto:
A radiatori
Tipo alimentazione:
Metano

Prezzo ridotto di €1 (2%%)

Ti interessa visionare l'immobile?

Fissa un appuntamento  Fissa un appuntamento

Richiedi informazioni

Clicca su Leggi per aprire l'informativa
* Questi campi sono obbligatori

Calcola il tuo mutuo

Semplice e senza impegno
Anticipo

( % )
Mutuo

( % )

pochi semplici passi

inserisci i tuoi dati
Questionario completato
Grazie per aver richiesto un appuntamento senza impegno con un nostro Consulente del Credito e Assicurativo.

Hai inserito correttamente tutti i dati necessari e a breve riceverai una e-mail con un link da convalidare per inviare i tuoi dati.
Affiliato
Immobiliare Rewind Sas
Prossima Apertura, 10040 Druento (TO)

Il nostro staff


  • Roberta Nardella
    Affiliata

  • Eleonora Listì
    Affiliata
Prossima Apertura, 10040 Druento (TO)
Zona: Druento
Mostra su mappa
Affiliato
Immobiliare Rewind Sas
Prossima Apertura, 10040 Druento (TO)

2026 Tecnocasa Franchising S.p.A. - P. IVA 08365160152 - Via Monte Bianco 60/A 20089 Rozzano (MI). Ogni agenzia ha un proprio titolare ed è autonoma. Privacy policy | Policy utilizzo | Cookie policy